.
2025/07/07
.
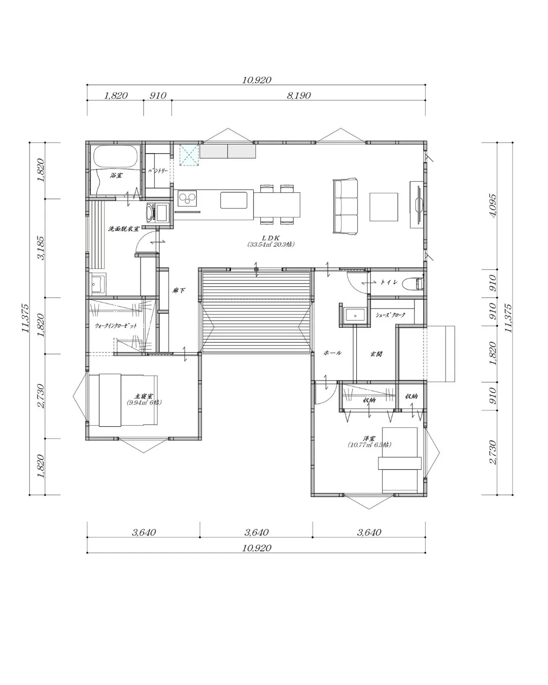
🏡【開放的なリビングと中庭が特徴的な平屋間取り】
📌Point
✔ 開放感のある20.3帖のLDK🙆
✔玄関ホール・廊下・LDKに隣接した中庭からは、自然光がたっぷり☀️
✔LDKとプライベート空間を分けた間取り✒️
[プライベート空間を大切にしたい!中庭が欲しい!]
そんな方におすすめの間取りです😊
📷 スワイプで詳細チェック!
#間取り図 #間取りアイデア #暮らしやすい間取り #注文住宅間取り #家事動線 #収納たっぷり #ファミリークローク #マイホーム計画 #後悔しない家づくり #家づくりアイデア #間取りで迷子 #鹿児島新築 #まんぷくハウス #工務店選び
鹿児島市で注文住宅をお考えなら、株式会社まんぷくハウスへ。鹿児島県鹿児島市真砂町で、高耐震等級の木造住宅を提供。平屋や二階建て、自由設計で理想の住まいを実現。土地探し、リフォームにも対応。高品質でローコストな住宅プランを提案。断熱性に優れた自然素材で、四季を通じて快適な注文住宅を。見積りから資金計画までトータルサポート。鹿児島の工務店、まんぷくハウスにご相談ください。









