🏡【37坪4LDKの広々としたタイルデッキのある二階建てプラ...
2025/08/18
🏡【37坪4LDKの広々としたタイルデッキのある二階建てプラン!】
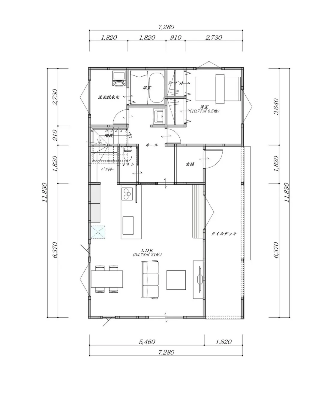
📐【1階】
・21帖のLDKは、家族の時間をゆったり楽しめる開放的な空間
・キッチン横には便利なパントリー付きで収納力も◎
・広々タイルデッキがあることで、おしゃれな外観を演出!
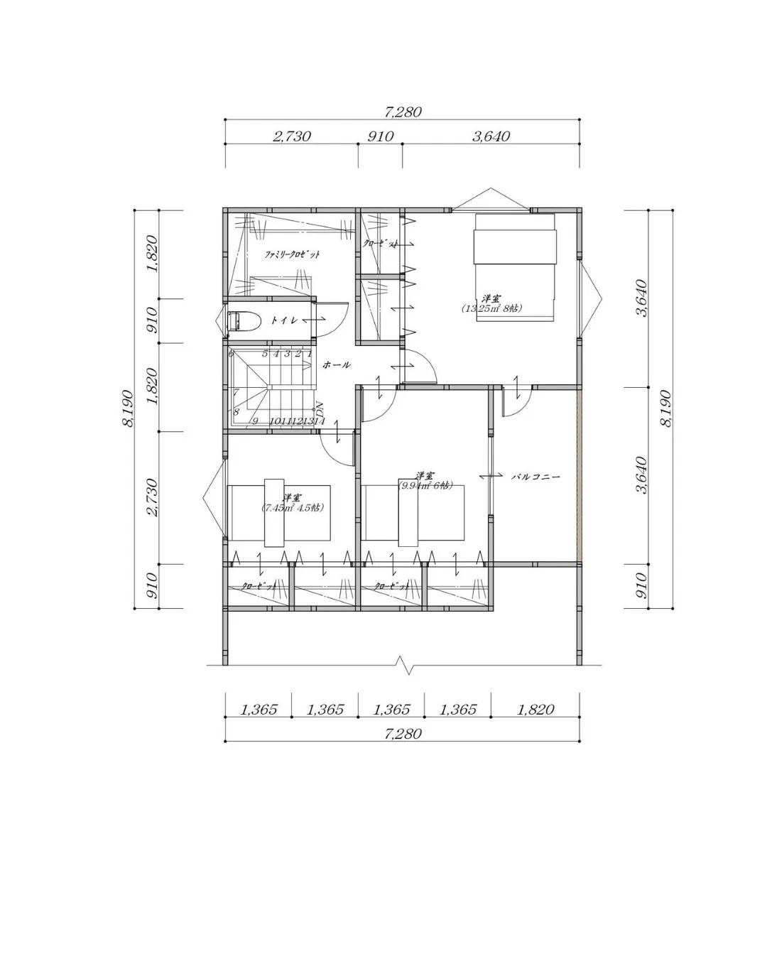
📐【2階】
・洋室が3部屋にそれぞれ収納とファミリークローゼットもあるので、収納力も抜群
・広々バルコニーでは、洗濯物を干したり、バーベキューにも最適◎
📸画像をスワイプして、外観や内観イメージもぜひご覧ください!
理想の暮らしをカタチにした、参考にしたい間取りです😊
———
📩 鹿児島で新築を検討されている方は、まんぷくハウスまで!
お気軽にDMもお待ちしております!
#タイルデッキ #バルコニー #鹿児島市 #鹿児島の家づくり #鹿児島新築 #鹿児島注文住宅 #鹿児島工務店 #姶良市 #霧島市 #薩摩川内市 #日置市
#住宅知識 #現場レポート #施工現場 #住宅性能 #建築の裏側 #VR体験
#間取り #間取りアイディア #暮らしやすい間取り #注文住宅間取り #家づくりアイディア #マイホーム計画中の方と繋がりたい
鹿児島市で注文住宅をお考えなら、株式会社まんぷくハウスへ。鹿児島県鹿児島市真砂町で、高耐震等級の木造住宅を提供。平屋や二階建て、自由設計で理想の住まいを実現。土地探し、リフォームにも対応。高品質でローコストな住宅プランを提案。断熱性に優れた自然素材で、四季を通じて快適な注文住宅を。見積りから資金計画までトータルサポート。鹿児島の工務店、まんぷくハウスにご相談ください。










