注文住宅は鹿児島県、鹿児島市の株式会社まんぷくハウス | インスタグラム投稿

各種お問合わせ

インスタグラム投稿

インスタグラム投稿

住宅に関するさまざまな情報をお届け

注文住宅に関するさまざまな情報をお届けしています。家づくりのポイントや建築のトレンド、耐震や省エネ性能に関する技術的な解説などのお役立ち情報を幅広く紹介しています。また、施工事例や、施工の裏側での取り組みなども取り上げており、家づくりを検討されている方にとって参考になる内容を発信しています。

.

2025/06/20

.🎉【上棟式・餅投げイベント開催のお知らせ】🎉⁡\皆さまぜひお越しください!/まんぷくハウスでは、お客様の大切な住まいの上棟を記念して、餅投げイベントを開催いたします👏✨📍開催場所:姶良市西餅田📅…

.

2025/06/16

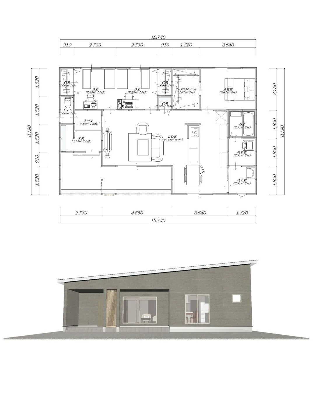
.🏡【広々LDKに勾配天井をかけた開放感のある平屋間取り】⁠平屋だからこそ感じることのできる「生活しやすい空間」と「広々空間」を両立した、理想の間取りをご紹介✨📌Point✔21.3帖のLDKは家族のくつろぎ空…

🏠見えないところにもこだわる家づくり🏠「人通口(じんつうこう)」ってご存じですか?基礎の中に設けられる小さな開口部——実はこれ、お家のメンテナンスを行う上でとても重要なんです✨「安心・快適な住ま…

.

2025/06/16

.🏡【生活のしやすさとプライベート空間を重視した2階建てプラン】⁡LDKまでの動線や玄関ホールとシューズクロークの関係性等細かいところにこだわった2階建て住宅をご紹介します✨⁡📐Point・1階の玄関ホール…

[完成見学会のお知らせ]\遊び心あるお家に、ふらっと遊びに来ませんか?/■開催日時:2025/6/1(日)〜■開催時間:10:00〜17:00■開催場所:鹿児島県姶良市平松※ご予約いただいた方に詳細な場所をお知らせ…

🎉お知らせです🎉なんと…‼️\まんぷくハウスが『リビングかごしま』に掲載されました!📖✨/お家づくりへの想いや、こだわりポイントがたっぷり詰まった内容になっています💭地域密着のフリーペーパーに掲載…

.

2025/06/09

.🏡【無駄のなく要望を叶える平屋間取り】⁠平屋ならではの「生活しやすい動線」で「無駄を省いた間取り」となっている理想の住まいをご紹介✨📌Point✔広々LDKは家族のくつろぎ空間✔リビングを中心に各部屋へ…

.

2025/06/09

.🏡【生活がしやすく開放感を感じられる2階建てプラン】⁡要望を叶える、こだわりの2階建て住宅をご紹介します✨⁡📐Point・1階は「家族がくつろげる広々LDK」と「吹き抜けによる開放感」を感じられる間取り・…

[完成見学会のお知らせ]\遊び心あるお家に、ふらっと遊びに来ませんか?/■開催日時:2025/6/1(日)〜■開催時間:10:00〜17:00■開催場所:鹿児島県姶良市平松※ご予約いただいた方に詳細な場所をお知らせ…

当店でご利用いただける電子決済のご案内

下記よりお選びいただけます。