.
2025/05/26
.
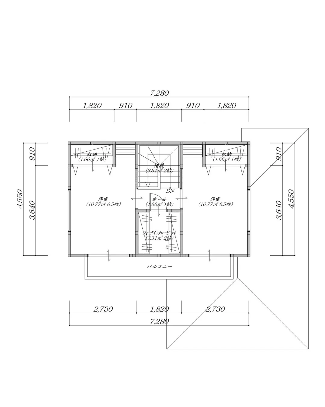
🏡【無駄を省いたコンパクトを重視した2階建て間取り】
プライベート空間を確立させるこだわりが詰まった2階建てプラン✨
📌Point
✔コンパクトで動線の整ったLDK
✔玄関ホールからLDKと和室へ行き来できるため、
お客様部屋としても活用できる和室
✔日当たり抜群の南側バルコニー
「プライベート空間✖コンパクト」を両立した理想の住まい、ぜひチェックしてみてください😊
📷 スワイプで間取りをチェック!
#間取り図 #2階建て #家事動線 #ファミリークローゼット #注文住宅 #マイホーム計画 #ルームツアー #暮らしを楽しむ #子育てしやすい家 #住宅デザイン #まんぷくハウス #鹿児島新築 #鹿児島市 #姶良市 #霧島市 #薩摩川内市 #どこでも
鹿児島市で注文住宅をお考えなら、株式会社まんぷくハウスへ。鹿児島県鹿児島市真砂町で、高耐震等級の木造住宅を提供。平屋や二階建て、自由設計で理想の住まいを実現。土地探し、リフォームにも対応。高品質でローコストな住宅プランを提案。断熱性に優れた自然素材で、四季を通じて快適な注文住宅を。見積りから資金計画までトータルサポート。鹿児島の工務店、まんぷくハウスにご相談ください。










