.
2025/05/26
.
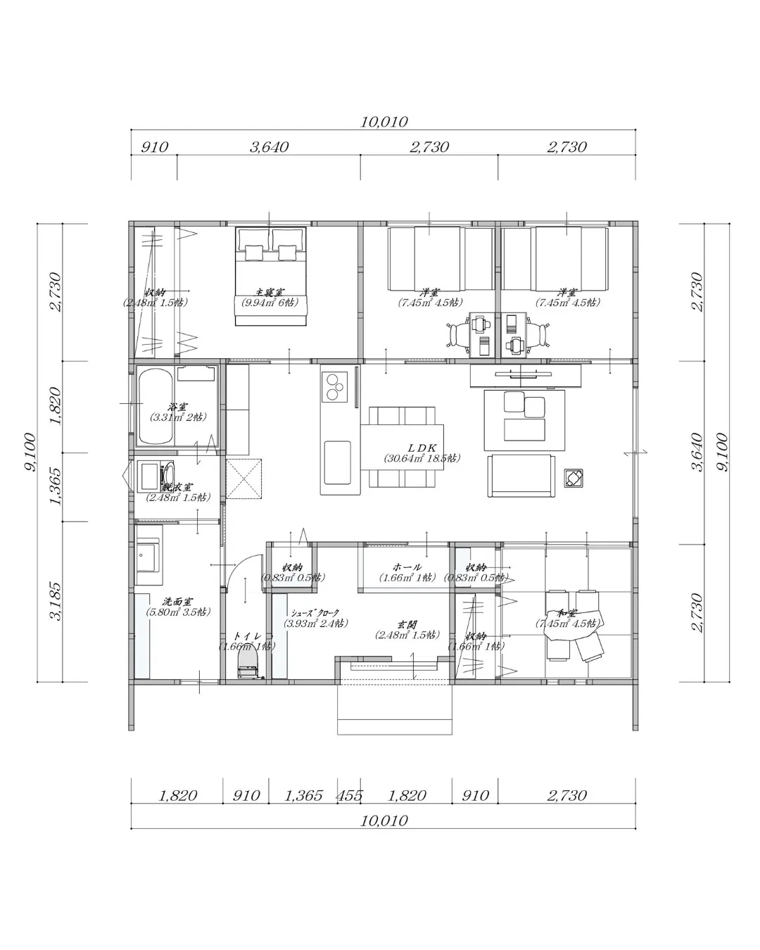
🏡 暮らしやすさを追求した平屋の間取り
今回ご紹介するのは、家族みんなが快適に過ごせるよう設計された、シンプルで機能的な平屋のおうちです✨
📐【ポイント】
・開放感のあるLDKで家族が自然と集まる空間に
・水回りの動線が短く、家事ラク設計
・リビングを中心に各部屋へアクセスできる「センターリビング型」
・シューズクロークで玄関収納もスッキリ
無駄のない間取りだからこそ、住む人のライフスタイルにフィットする暮らしが叶います🌿
📸画像をスワイプして、外観・内観もぜひチェックしてみてください!
———
🏠 間取り相談・モデルハウス見学もお気軽にDMください♪
#平屋 #間取り紹介 #平屋暮らし #家づくりアイデア #マイホーム計画 #注文住宅 #鹿児島の家 #家事動線 #暮らしを楽しむ #おうち時間 #まんぷくハウス #鹿児島新築 #鹿児島市 #姶良市 #霧島市 #薩摩川内市 #どこでも
鹿児島市で注文住宅をお考えなら、株式会社まんぷくハウスへ。鹿児島県鹿児島市真砂町で、高耐震等級の木造住宅を提供。平屋や二階建て、自由設計で理想の住まいを実現。土地探し、リフォームにも対応。高品質でローコストな住宅プランを提案。断熱性に優れた自然素材で、四季を通じて快適な注文住宅を。見積りから資金計画までトータルサポート。鹿児島の工務店、まんぷくハウスにご相談ください。









