.
2025/06/02
.
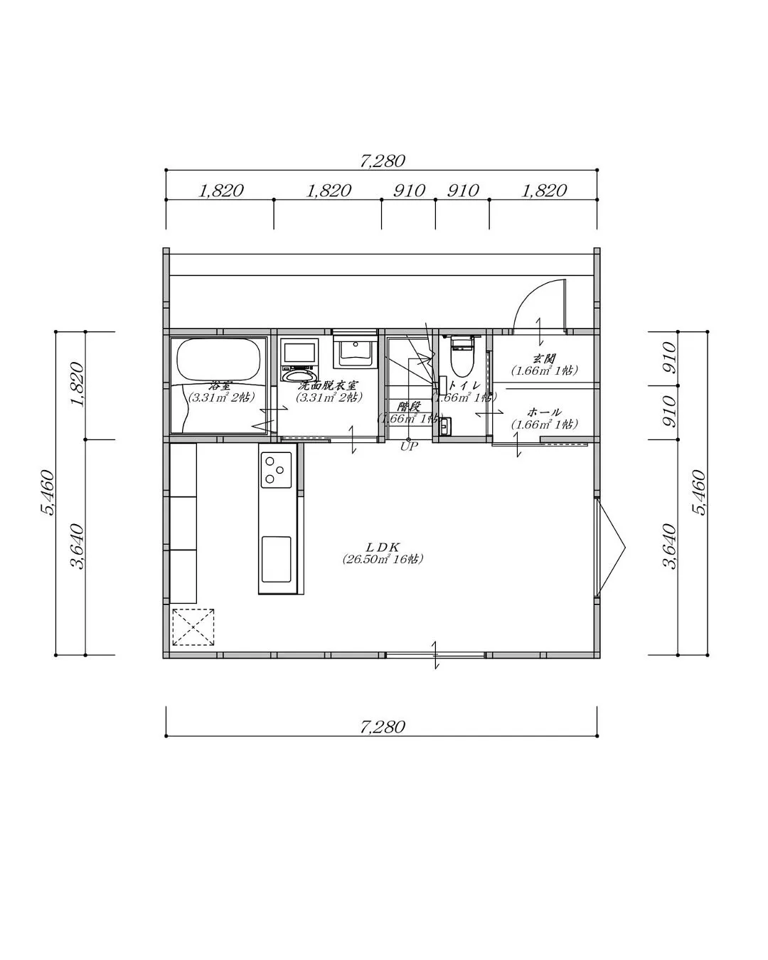
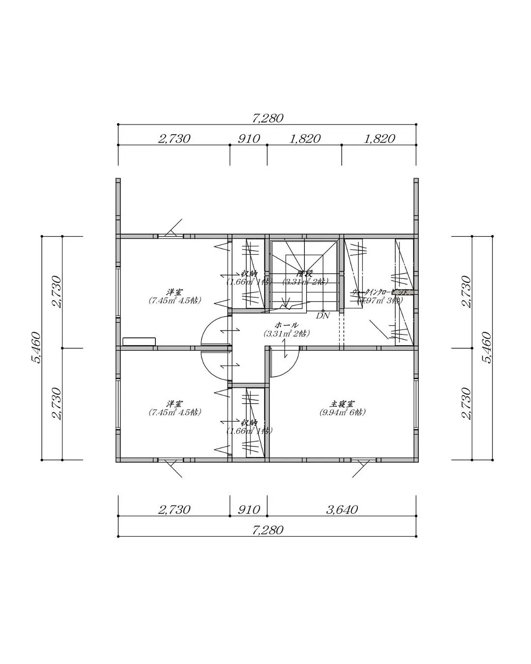
🏠【無駄を最大限省いたコンパクトな2階建て間取り】
要望を叶えつつ、コンパクトなお家を検討されている方におすすめ!✨
📌Point
✔ リビング階段で家族が自然と顔を合わせる間取り
✔各居室に収納+ウォークインクローゼットも完備しているため収納に困らない!
✔ 南向きLDKで日当たり◎
住まいづくりの参考に、ぜひチェックしてみてください☺️
📷画像をスワイプして間取りをチェック!
#間取り図 #注文住宅 #2階建て #家づくり #マイホーム計画 #ルームツアー #暮らしを楽しむ #まんぷくハウス #鹿児島新築 #鹿児島市 #姶良市 #霧島市 #薩摩川内市 #どこでも
鹿児島市で注文住宅をお考えなら、株式会社まんぷくハウスへ。鹿児島県鹿児島市真砂町で、高耐震等級の木造住宅を提供。平屋や二階建て、自由設計で理想の住まいを実現。土地探し、リフォームにも対応。高品質でローコストな住宅プランを提案。断熱性に優れた自然素材で、四季を通じて快適な注文住宅を。見積りから資金計画までトータルサポート。鹿児島の工務店、まんぷくハウスにご相談ください。










