.
2025/06/02
.
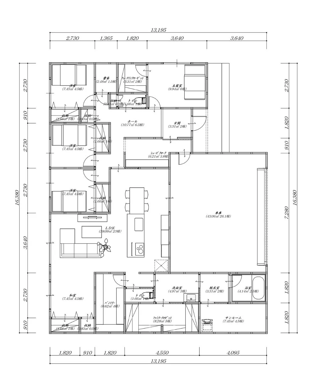
🏡【こだわりのつまった平屋間取り】
家事動線のしやすさとプライベート空間を分けたインナーガレージ付きの平屋をご紹介✨
📌Point
✔ 和室も隣接した広々LDKは家族のくつろぎ空間
✔ 大容量ファミリークローゼット+パントリー+シューズクロークと抜群の収納力
✔LDKと居室を分けた、
プライベート空間を大切にした間取り
要望を詰め込んだこだわり抜いた間取りとなっております✨
📷 スワイプで詳細チェック!
#間取り図 #平屋 #平屋暮らし #家づくり #マイホーム計画 #注文住宅 #ルームツアー #暮らしを楽しむ #家事動線 #収納たっぷりの家 #まんぷくハウス #鹿児島新築 #鹿児島市 #姶良市 #霧島市 #薩摩川内市 #どこでも
鹿児島市で注文住宅をお考えなら、株式会社まんぷくハウスへ。鹿児島県鹿児島市真砂町で、高耐震等級の木造住宅を提供。平屋や二階建て、自由設計で理想の住まいを実現。土地探し、リフォームにも対応。高品質でローコストな住宅プランを提案。断熱性に優れた自然素材で、四季を通じて快適な注文住宅を。見積りから資金計画までトータルサポート。鹿児島の工務店、まんぷくハウスにご相談ください。









