.
2025/06/09
.
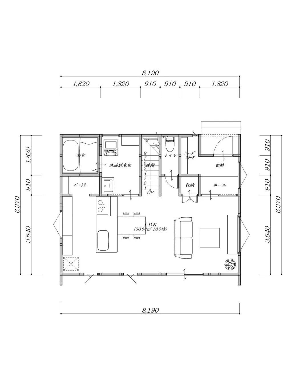
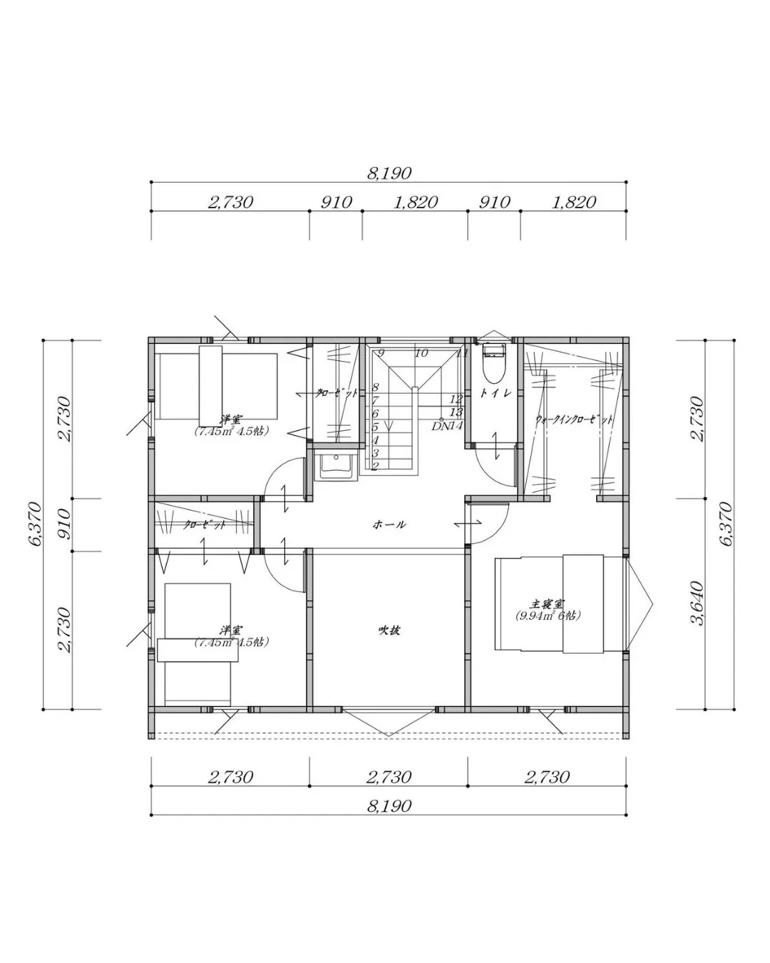
🏡【生活がしやすく開放感を感じられる2階建てプラン】
要望を叶える、こだわりの2階建て住宅をご紹介します✨
📐Point
・1階は「家族がくつろげる広々LDK」と「吹き抜けによる開放感」を感じられる間取り
・2階にはプライベート空間をしっかり確保
・最低限の無駄を省き、大容量の収納を確保
📸画像をスワイプして、外観や内観イメージもぜひご覧ください!
理想の暮らしをカタチにした、参考にしたい間取りです😊
———
📩 間取り相談や見学予約は、お気軽にDMください!
#2階建て間取り #間取り紹介 #暮らしを楽しむ家 #注文住宅アイデア #マイホーム計画 #家事ラク動線 #鹿児島の家 #ファミリークローゼット #ランドリールームのある家 #まんぷくハウス #鹿児島新築 #鹿児島市 #姶良市 #霧島市 #薩摩川内市 #どこでも
鹿児島市で注文住宅をお考えなら、株式会社まんぷくハウスへ。鹿児島県鹿児島市真砂町で、高耐震等級の木造住宅を提供。平屋や二階建て、自由設計で理想の住まいを実現。土地探し、リフォームにも対応。高品質でローコストな住宅プランを提案。断熱性に優れた自然素材で、四季を通じて快適な注文住宅を。見積りから資金計画までトータルサポート。鹿児島の工務店、まんぷくハウスにご相談ください。










