.
2025/06/16
.
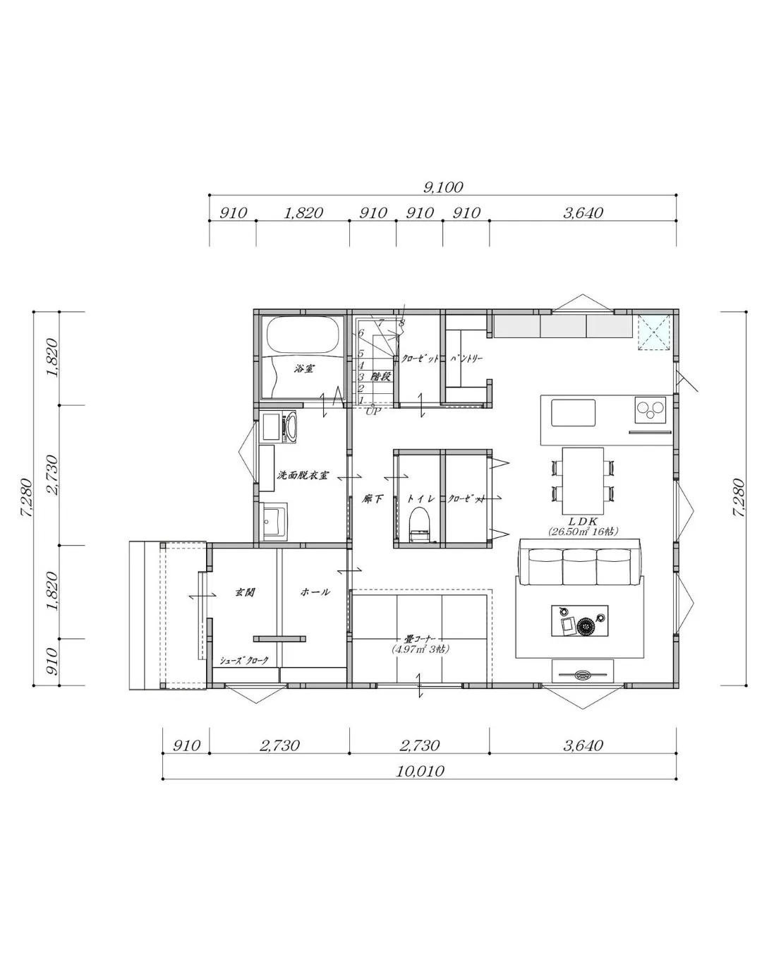
🏡【生活のしやすさとプライベート空間を重視した2階建てプラン】
LDKまでの動線や玄関ホールとシューズクロークの関係性等細かいところにこだわった2階建て住宅をご紹介します✨
📐Point
・1階の玄関ホールから靴を取ってそのままおでかけ👞
・1階のキッチンからはお料理や洗い物をしながらテレビをみることができる📺
・2階にプライベート空間をしっかり確保✨
📸画像をスワイプして、外観や内観イメージもぜひご覧ください!
理想の暮らしをカタチにした、参考にしたい間取りです😊
———
📩 間取り相談や見学予約は、お気軽にDMください!
#2階建て間取り #間取り紹介 #暮らしを楽しむ家 #注文住宅アイデア #マイホーム計画 #家事ラク動線 #鹿児島の家 #ファミリークローゼット #ランドリールームのある家 #まんぷくハウス #鹿児島新築 #鹿児島市 #姶良市 #霧島市 #薩摩川内市 #どこでも
鹿児島市で注文住宅をお考えなら、株式会社まんぷくハウスへ。鹿児島県鹿児島市真砂町で、高耐震等級の木造住宅を提供。平屋や二階建て、自由設計で理想の住まいを実現。土地探し、リフォームにも対応。高品質でローコストな住宅プランを提案。断熱性に優れた自然素材で、四季を通じて快適な注文住宅を。見積りから資金計画までトータルサポート。鹿児島の工務店、まんぷくハウスにご相談ください。










