.
2025/06/23
.
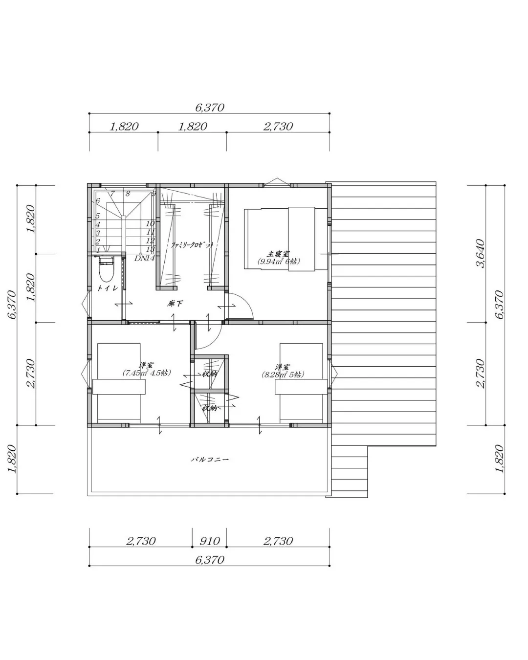
🏡【生活のしやすさと広々空間を重視した2階建てプラン】
📐Point
・1階のLDKと和室は隣接して開口されているので、とても開放感を感じることができます☺️
・1階のキッチンからはお料理や洗い物をしながらテレビをみることができます📺
・2階にプライベート空間と収納・バルコニーもしっかり確保✨
📸画像をスワイプして、外観や内観イメージもぜひご覧ください!
理想の暮らしをカタチにした、参考にしたい間取りです😊
———
📩 間取り相談や見学予約は、お気軽にDMください!
#間取り図 #間取りアイデア #暮らしやすい間取り #注文住宅間取り #家事動線 #収納たっぷり #ファミリークローク #ランドリールームのある家 #マイホーム計画 #後悔しない家づくり #家づくりアイデア #間取りで迷子 #鹿児島新築 #まんぷくハウス #工務店選び
鹿児島市で注文住宅をお考えなら、株式会社まんぷくハウスへ。鹿児島県鹿児島市真砂町で、高耐震等級の木造住宅を提供。平屋や二階建て、自由設計で理想の住まいを実現。土地探し、リフォームにも対応。高品質でローコストな住宅プランを提案。断熱性に優れた自然素材で、四季を通じて快適な注文住宅を。見積りから資金計画までトータルサポート。鹿児島の工務店、まんぷくハウスにご相談ください。










