.
2025/07/14
.
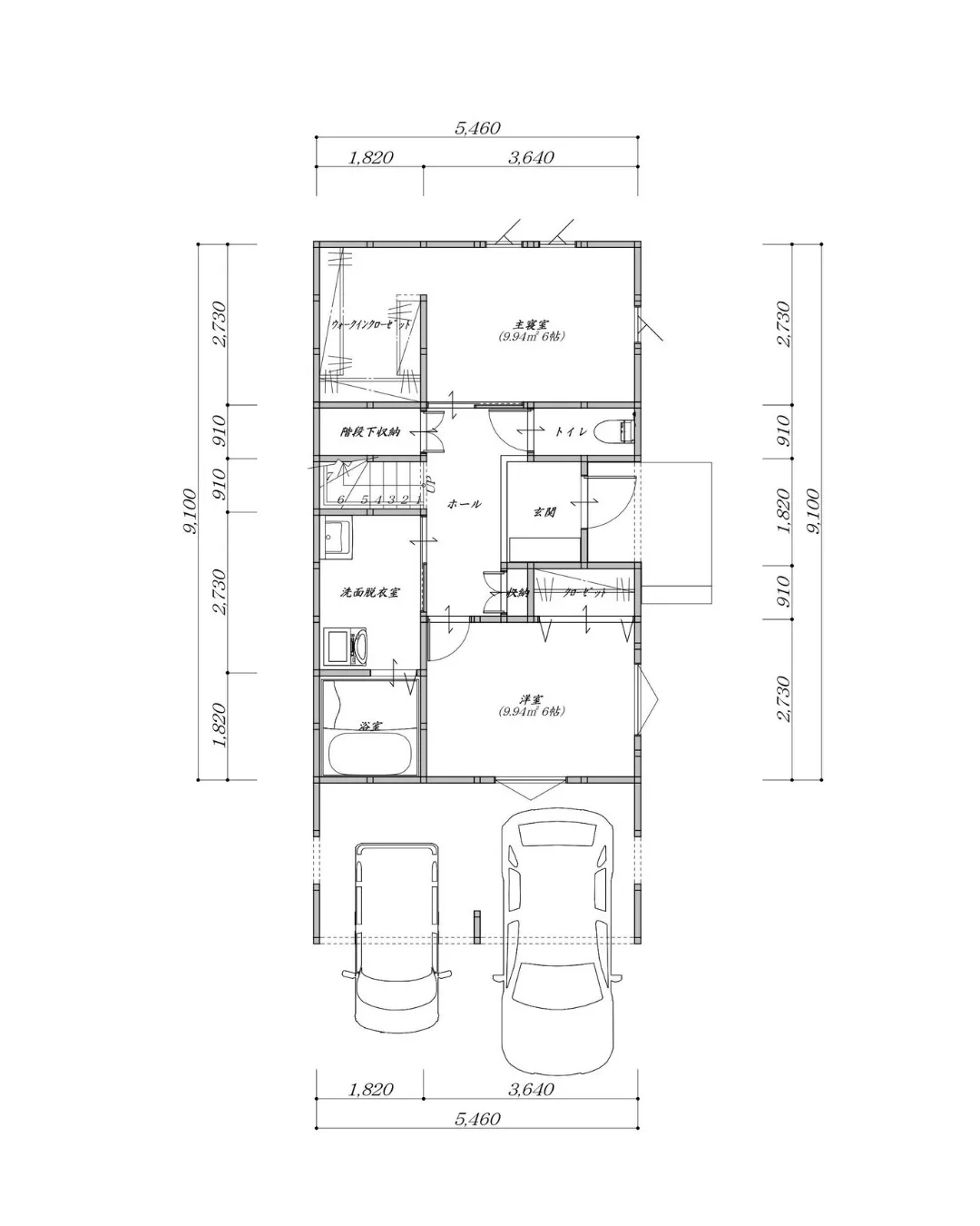
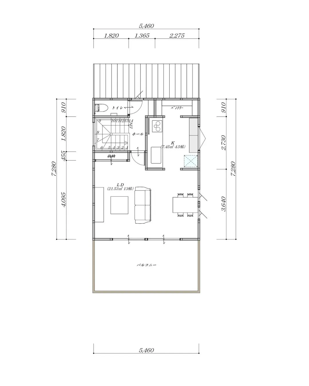
🏡【眺望や日当たり抜群の2階リビングプラン!】
📐Point
・1階には居室と洗面所・浴室・トイレがあり、プライベート空間を大切にした空間✨
・2階にLDKがあるので、2階からの眺望や日当たりは抜群‼️
・LDK横には広々バルコニー✨
📸画像をスワイプして、外観や内観イメージもぜひご覧ください!
理想の暮らしをカタチにした、参考にしたい間取りです😊
———
📩 間取り相談や見学予約は、お気軽にDMください!
#間取り図 #間取りアイデア #暮らしやすい間取り #注文住宅間取り #家事動線 #収納たっぷり #ファミリークローク #マイホーム計画 #後悔しない家づくり #家づくりアイデア #間取りで迷子 #鹿児島新築 #まんぷくハウス #工務
鹿児島市で注文住宅をお考えなら、株式会社まんぷくハウスへ。鹿児島県鹿児島市真砂町で、高耐震等級の木造住宅を提供。平屋や二階建て、自由設計で理想の住まいを実現。土地探し、リフォームにも対応。高品質でローコストな住宅プランを提案。断熱性に優れた自然素材で、四季を通じて快適な注文住宅を。見積りから資金計画までトータルサポート。鹿児島の工務店、まんぷくハウスにご相談ください。










