🏡【吹抜のある開放感のある空間ととウッドデッキが特徴的な二階...
2025/07/21
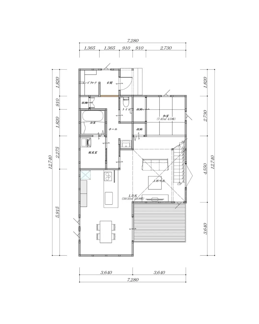
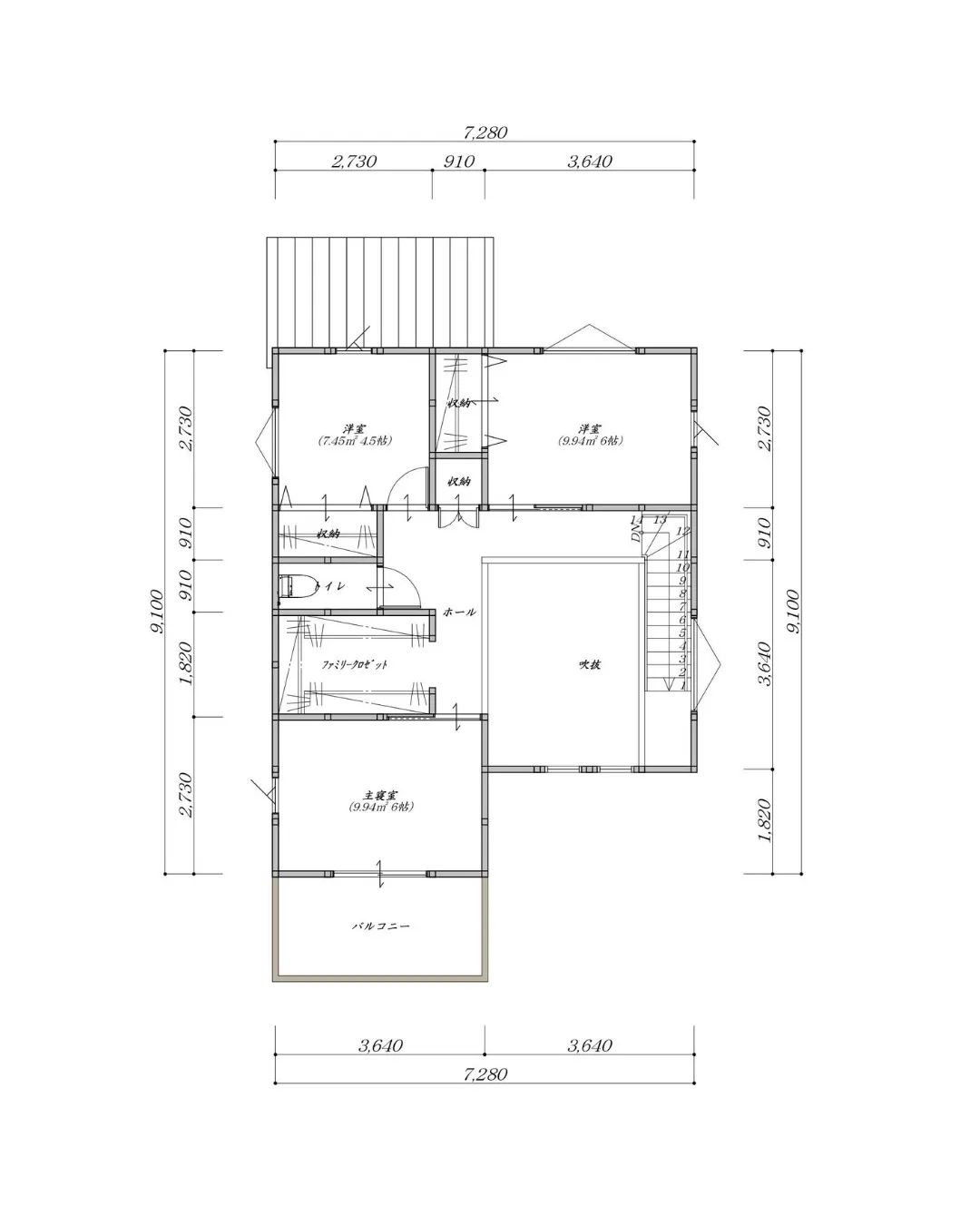
🏡【吹抜のある開放感のある空間ととウッドデッキが特徴的な二階建てプラン!】
📐Point
・1階の玄関ホールには独立洗面台が設けられているので、帰宅後のお手洗いがとても便利✨
・1階には28.8帖の広々LDKがあり、吹き抜けによりさらに大空間を演出‼️
・2階の居室にはそれぞれ収納も設けられており、ファミリークローゼットもあるので、抜群の収納力✨
📸画像をスワイプして、外観や内観イメージもぜひご覧ください!
理想の暮らしをカタチにした、参考にしたい間取りです😊
———
📩 間取り相談や見学予約は、お気軽にDMください!
#間取り図 #間取りアイデア #暮らしやすい間取り #注文住宅間取り #家事動線 #収納たっぷり #ファミリークローク #マイホーム計画 #後悔しない家づくり #家づくりアイデア #間取りで迷子 #鹿児島新築 #まんぷくハウス #工務
鹿児島市で注文住宅をお考えなら、株式会社まんぷくハウスへ。鹿児島県鹿児島市真砂町で、高耐震等級の木造住宅を提供。平屋や二階建て、自由設計で理想の住まいを実現。土地探し、リフォームにも対応。高品質でローコストな住宅プランを提案。断熱性に優れた自然素材で、四季を通じて快適な注文住宅を。見積りから資金計画までトータルサポート。鹿児島の工務店、まんぷくハウスにご相談ください。










