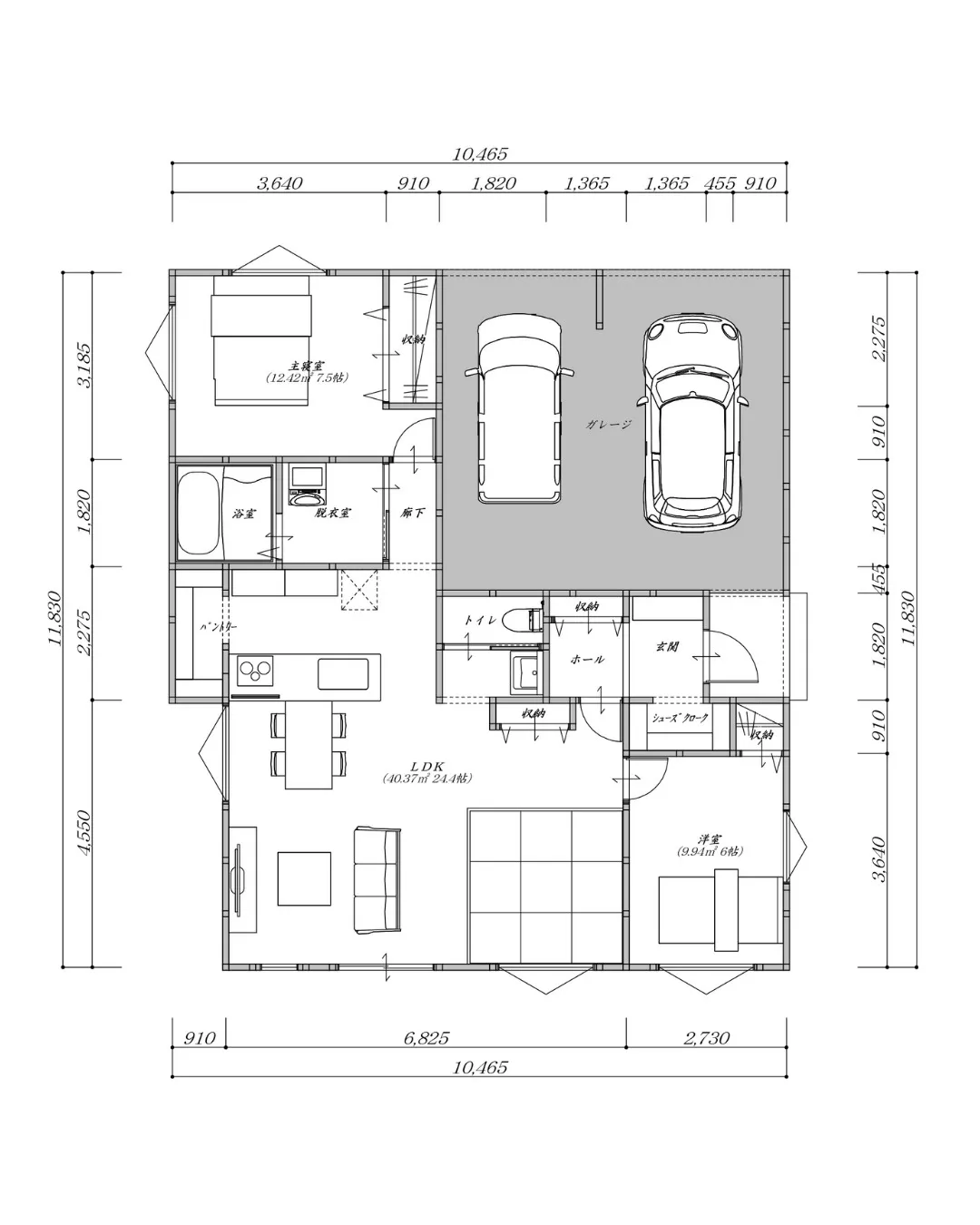
【26坪・2LDKの和室小上がりのある平屋間取り】
2025/09/08
【26坪・2LDKの和室小上がりのある平屋間取り】
📌Point
✔ 24.4帖のLDKは家族がくつろげる広々空間!
✔洋室と主寝室を分けてプライベートも確保
✔インナーガレージもあるため雨の日も安心✨
✔キッチン横には広々パントリーもあるため収納力も抜群◎
📸画像をスワイプして、外観や内観イメージもぜひご覧ください!
他にも見たい投稿やお家づくりに関して気になる情報ございましたら、お気軽にコメントお待ちしております。
———
📩 鹿児島で新築を検討されている方は、まんぷくハウスまで!
お気軽にDMもお待ちしております!
#小上がり和室 #インナーガレージ #鹿児島の家づくり #鹿児島新築 #鹿児島注文住宅 #鹿児島工務店 #姶良市 #霧島市 #薩摩川内市 #日置市
#住宅知識 #現場レポート #施工現場 #住宅性能 #建築の裏側 #VR体験
#間取り #間取りアイディア #暮らしやすい間取り #注文住宅間取り #家づくりアイディア #マイホーム計画中の方と繋がりたい
鹿児島市で注文住宅をお考えなら、株式会社まんぷくハウスへ。鹿児島県鹿児島市真砂町で、高耐震等級の木造住宅を提供。平屋や二階建て、自由設計で理想の住まいを実現。土地探し、リフォームにも対応。高品質でローコストな住宅プランを提案。断熱性に優れた自然素材で、四季を通じて快適な注文住宅を。見積りから資金計画までトータルサポート。鹿児島の工務店、まんぷくハウスにご相談ください。









