【32坪3LDKの収納量抜群二階建てプラン!】
2025/10/13
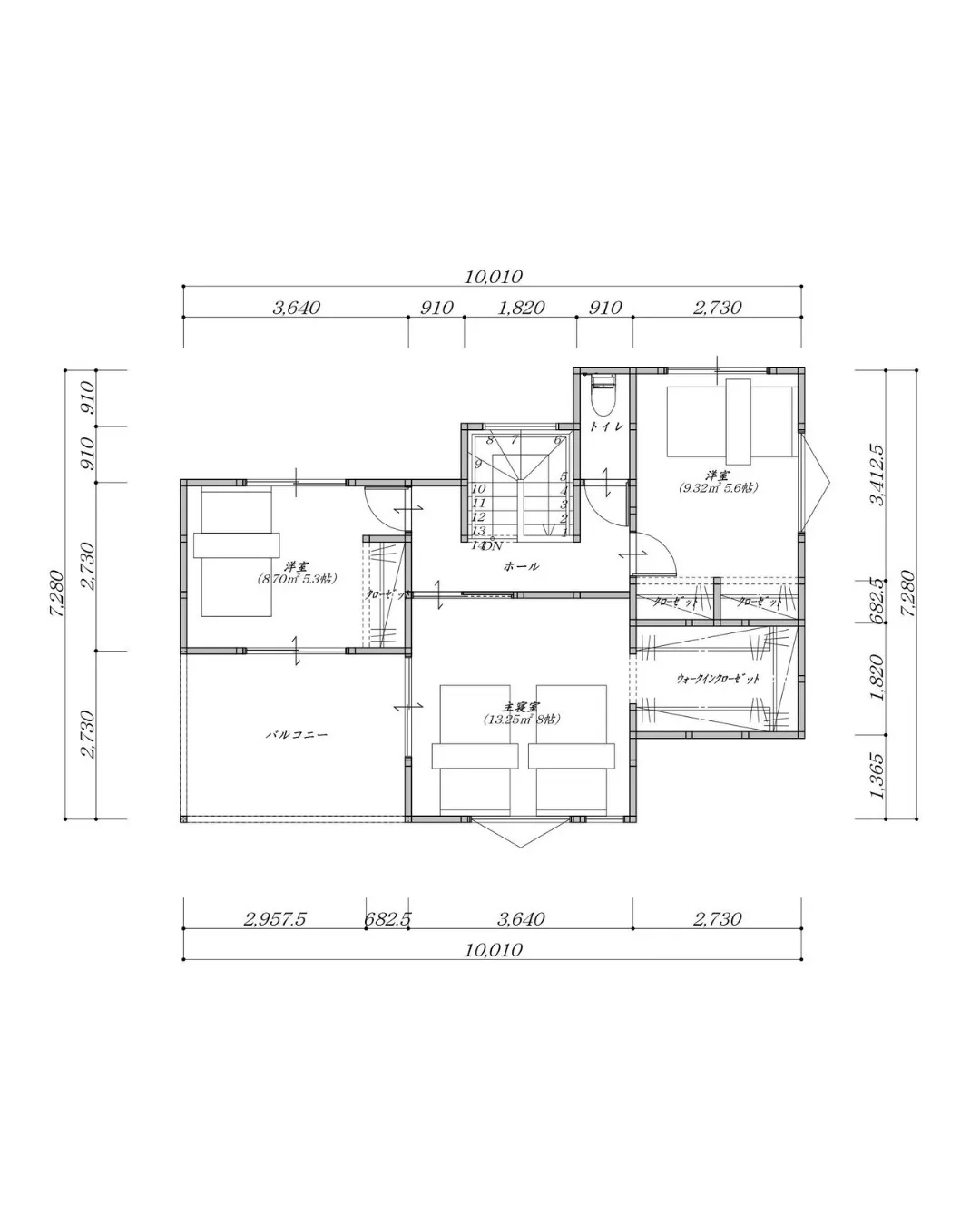
【32坪3LDKの収納量抜群二階建てプラン!】
・21帖の広々LDKにはお子様の学習スペースも!
・シューズクローク・パントリー・リビング収納・ウォークインクローゼットもあるため収納力も抜群!
・様々な用途としても活用できる広々バルコニーも完備
📸画像をスワイプして、外観や内観イメージもぜひご覧ください!
他にも見たい投稿やお家づくりに関して気になる情報ございましたら、お気軽にコメントお待ちしております。
———
📩 鹿児島で新築を検討されている方は、まんぷくハウスまで!
お気軽にDMもお待ちしております!
#収納力 #広々LDK #鹿児島市 #鹿児島の家づくり #鹿児島新築 #鹿児島注文住宅 #鹿児島工務店 #姶良市 #霧島市 #薩摩川内市 #日置市 #住宅知識 #現場レポート #施工現場 #住宅性能 #建築の裏側 #VR体験
#間取り #間取りアイディア #暮らしやすい間取り #注文住宅間取り #家づくりアイディア #マイホーム計画中の方と繋がりたい
鹿児島市で注文住宅をお考えなら、株式会社まんぷくハウスへ。鹿児島県鹿児島市真砂町で、高耐震等級の木造住宅を提供。平屋や二階建て、自由設計で理想の住まいを実現。土地探し、リフォームにも対応。高品質でローコストな住宅プランを提案。断熱性に優れた自然素材で、四季を通じて快適な注文住宅を。見積りから資金計画までトータルサポート。鹿児島の工務店、まんぷくハウスにご相談ください。










