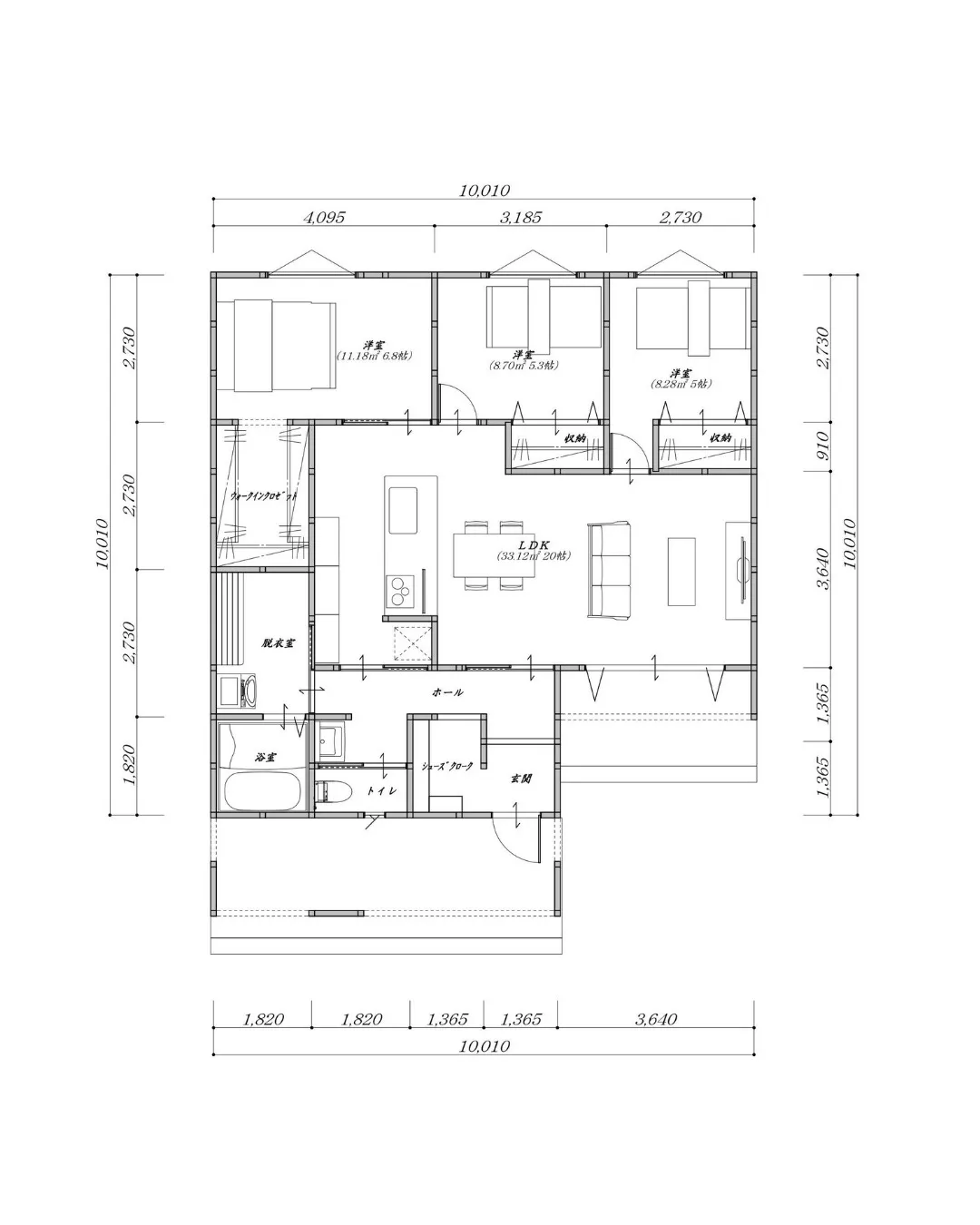
🏡✨【27坪×3LDK|家事動線がスムーズな平屋】
2025/10/13
🏡✨【27坪×3LDK|家事動線がスムーズな平屋】
家族みんなが暮らしやすい✨
“ちょうどいい広さ”と“抜群の動線設計”が魅力の平屋です☺️
📌Point
✅ 20帖のLDKは、家族がのびのびくつろげる広々空間!
✅ センターリビング型で、どの居室へもLDKを通るつながりのある間取り🏠
✅ 脱衣室にカウンター付き! 洗濯物を畳んだり、アイロンがけもサッと完結✨
📸 スワイプして外観&内観のイメージもチェック👀
ナチュラルで落ち着く空間デザインをぜひご覧ください🌿
💬「こんな間取り見たい!」「収納多めの平屋が気になる!」など、
コメント・DMでお気軽に教えてください☺️
———
📩 鹿児島で新築を検討されている方は、まんぷくハウスまで!
お気軽にDMもお待ちしております!
#家事動線 #センターリビング #鹿児島の家づくり #鹿児島新築 #鹿児島注文住宅 #鹿児島工務店 #姶良市 #霧島市 #薩摩川内市 #日置市
#住宅知識 #現場レポート #施工現場 #住宅性能 #建築の裏側 #VR体験
#間取り #間取りアイディア #暮らしやすい間取り #注文住宅間取り #家づくりアイディア #マイホーム計画中の方と繋がりたい
鹿児島市で注文住宅をお考えなら、株式会社まんぷくハウスへ。鹿児島県鹿児島市真砂町で、高耐震等級の木造住宅を提供。平屋や二階建て、自由設計で理想の住まいを実現。土地探し、リフォームにも対応。高品質でローコストな住宅プランを提案。断熱性に優れた自然素材で、四季を通じて快適な注文住宅を。見積りから資金計画までトータルサポート。鹿児島の工務店、まんぷくハウスにご相談ください。









