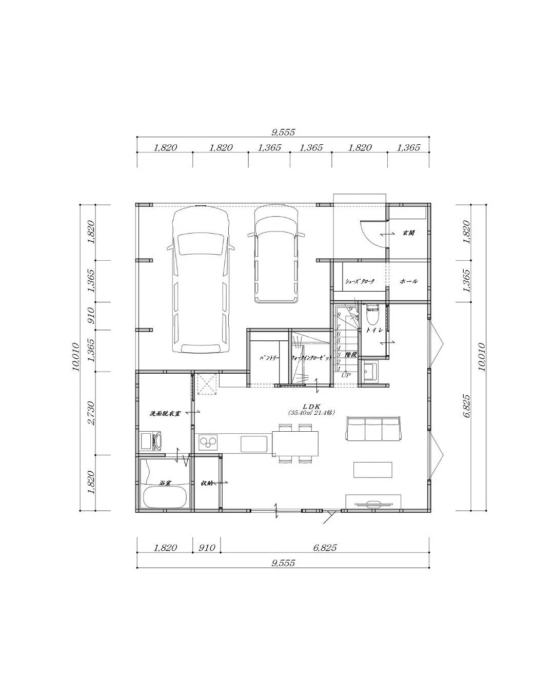
【ガレージからの動線がスムーズな二階建てプラン!】
2025/10/20
【ガレージからの動線がスムーズな二階建てプラン!】
📌Point
✔ 21.4帖の広々LDKは家族がのびのび過ごせる快適空間!
✔ パントリーやウォークインクローゼットは、動線上に配置して使いやすさ抜群!
✔ 様々な用途で活用できる“超広々バルコニー”も完備!
📸画像をスワイプして、外観や内観イメージもぜひチェックしてみてください!
他にも見てみたい間取りや、お家づくりに関するご質問などございましたら、
お気軽にコメントお待ちしております🏠✨
———
📩 鹿児島で新築をご検討中の方は「まんぷくハウス」まで!
お気軽にDMもお待ちしております☺️
#インナーガレージ #広々バルコニー #鹿児島市 #鹿児島の家づくり #鹿児島新築 #鹿児島注文住宅 #鹿児島工務店 #姶良市 #霧島市 #薩摩川内市 #日置市
#住宅知識 #現場レポート #施工現場 #住宅性能 #建築の裏側 #VR体験
#間取り #間取りアイデア #暮らしやすい間取り #注文住宅間取り #家づくりアイデア #マイホーム計画中の方と繋がりたい
鹿児島市で注文住宅をお考えなら、株式会社まんぷくハウスへ。鹿児島県鹿児島市真砂町で、高耐震等級の木造住宅を提供。平屋や二階建て、自由設計で理想の住まいを実現。土地探し、リフォームにも対応。高品質でローコストな住宅プランを提案。断熱性に優れた自然素材で、四季を通じて快適な注文住宅を。見積りから資金計画までトータルサポート。鹿児島の工務店、まんぷくハウスにご相談ください。










