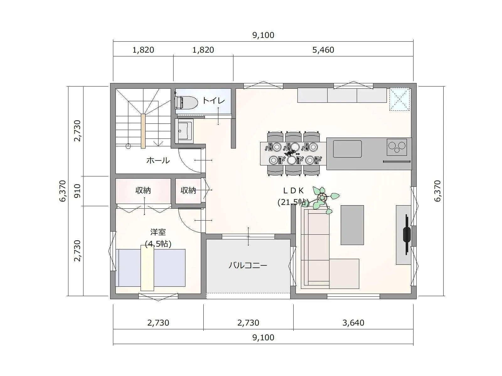
2階にLDK!?狭小地にでも最適なお家! 2025/09/18 本体価格帯1800万円(税抜き)月々の支払い48,000円~(40年ローン・金利1.35%)建築面積55.48㎡(16.78坪)延べ床面積102.69㎡(31.06坪)敷地面積181.15㎡(54.79坪)間取り3LDK階数平屋家族構成4人家族想定(大人2人・子供2人) VR紹介動画 施工例